Loft s atriem

Rekonstrukce a interiér loftového bytu v Praze 4
Místo:
Praha 4 – Nusle
Rok:
studie 2017, realizace 2019–2022
Užitná plocha:
178 m2
Tým:
Lenka Míková, Dominika Galandová
Fotografie:
Tomáš Souček
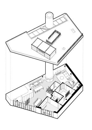
Nevšední prostor v betonovém skeletu bez klasických oken, obrácený sám do sebe vytváří útočiště, vlastní svět měnící atmosféru podle denního světla a počasí.
Prosklené atrium uprostřed bytu představuje ostrůvek exteriéru, kam klidně prší a sněží, jako malá vlastní krajina uvnitř obytného prostoru, pomlka a přitom středobod domova. A taky protiváha cihlového komínu, vertikální dominanty, které jde díky střešnímu světlíku dohlédnout až na vrchol. Intimitu vnitřku vyvažuje velká střešní terasa se zahradou a výhledy do okolí. Nové schody na terasu stojí v atriu jako socha pohledová ze všech stran, díky své subtilitě a zakřivení neclonící, zahalená v odrazech a zeleni. Prostor vznikl jako součást bytového domu z roku 2004 vestavěného do dvora bývalého mlýna v pražských Nuslích. V rámci rekonstrukce jsme měnili zasklení atria, světlíků i fasády a celé dispoziční řešení bytu. Většina bytu zůstala jako otevřený openspace, menší privátnější část zahrnuje ložnice a koupelny a průchozí šatnu. Pomyslná hranice těchto dvou zón je záměrně nepřímá a vytváří tak zákoutí, částečně probíhá skrz atrium a nabízí tak průhledy i průchody. Pohledový beton na stropech, kulaté nosné sloupy a nová stěrková podlaha vytváří minimalistický základ pro pestrost vybavení, barev, textur a rodinného života, kterou sem vnesli klienti se svým jedinečným vkusem.

















